
Давайте мы перезвоним Вам и все расскажем

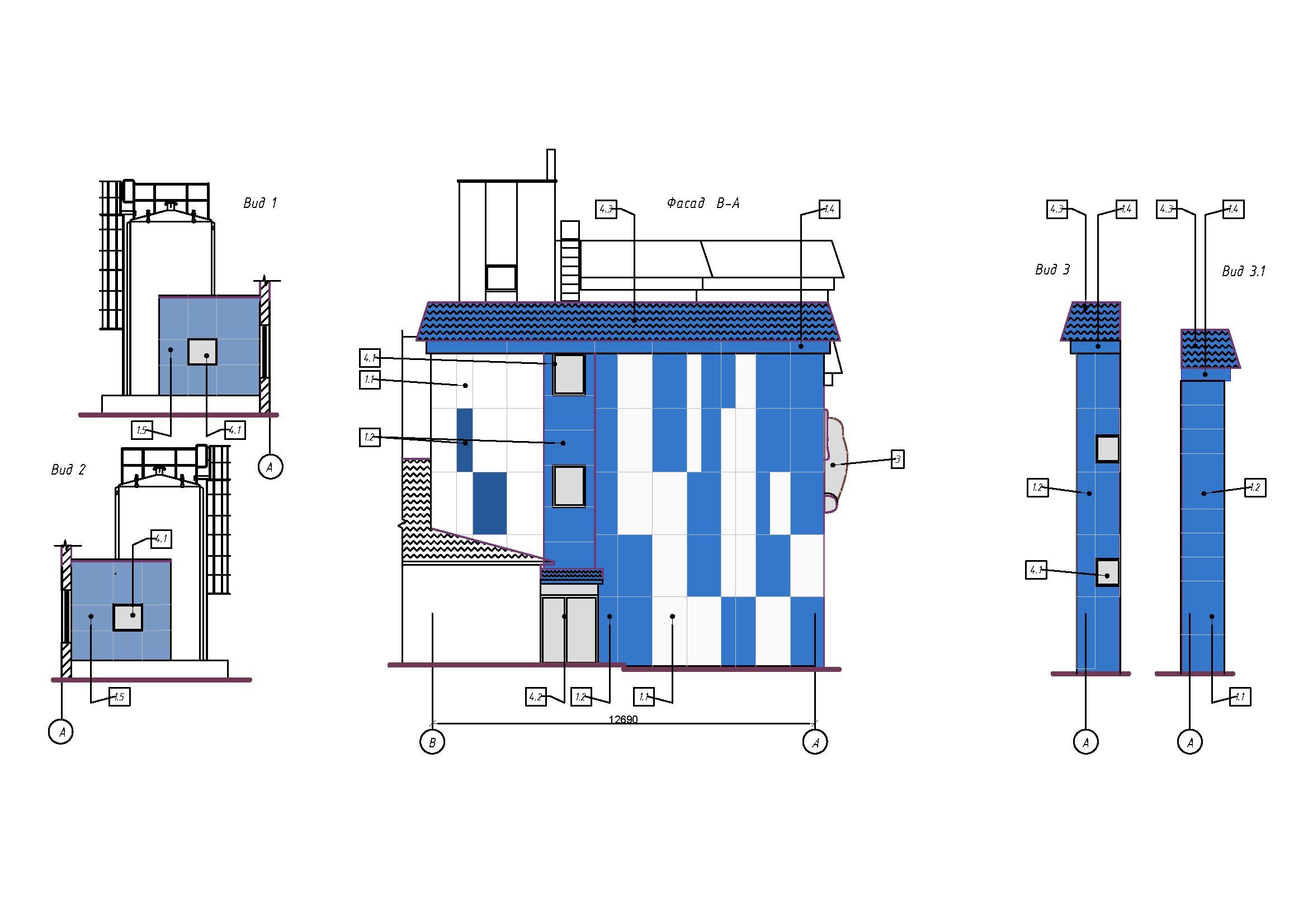
Проектными решениями предусматривалось устройство металлоконструкций под накладной декор «Кувшин», а также под накладной декор «Молочные волны».
Металлоконструкции выполнены из прокатных стальных труб квадратных и листов. Применение монтажных соединений на сварке обусловлено выполнением строительно-монтажных работ в условиях существующего здания и требует корректировки по месту.
Проектом капитального ремонта предусматривались:
- Замена отделки фасада.
- Установка наружных декоротивных конструкций.
- Вентфасад из композитных панелей и стального профиля.
- Новая отделка фасадов.